ID CP2537220
Teren intravilan 716 mp | 1 Mai | Oportunitate investitie
ID CP2537220
1,159,500 €
Oportunitate rară de investitie!
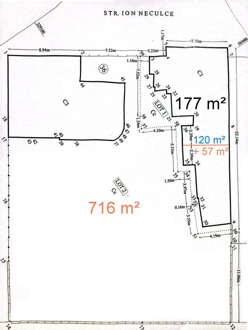
Vă oferim spre vânzare un teren intravilan de 716 mp, situat în zona 1 Mai, cu o deschidere de 16.46 metri. Terenul este ideal pentru dezvoltarea unei noi construcții, având un coeficient de ocupare a terenului (POT) de 45% și un coeficient de utilizare a terenului (CUT) de 1.3.
Pe teren se află o clădire veche, care este demolabilă, iar aceasta nu este clasificată ca monument istoric, oferindu-vă libertatea de a implementa proiectul dorit fără constrângeri suplimentare.
Dispune de certificat de urbanism valabil, facilitând astfel procesul de autorizare a noii construcții.
Locația excelentă și potențialul de dezvoltare fac din acest teren o alegere perfectă atât pentru investitori, cât și pentru dezvoltatori imobiliari sau pentru cei care doresc să construiască o locuință nouă.
Pentru mai multe detalii sau pentru a programa o vizionare, vă rugăm să ne contactați!
Nu ratați această ocazie!
 
         
         
         
         
         
         
         
         
         
         
         
         
         
         
         
         
         
         
        